Harbor Bay at MacDill
Apply
Residents Documents Waitlist faqs Contact
Neighborhoods Floor Plans Home Features Community Amenities Gallery
Social Calendar Event Photos Newsletters Share Your Experience
Beyond The Base Area Schools Living Green
Tenant Bill of Rights Dispute Resolution Process
Live Neighborhoods Floor Plans Home Features Community Amenities Gallery Connect Social Calendar Event Photos Newsletters Share Your Experience Explore Beyond The Base Area Schools Living Green Learn Tenant Bill of Rights Dispute Resolution Process Apply
Harbor Bay at MacDill
Residents Documents Waitlistfaqs Contact

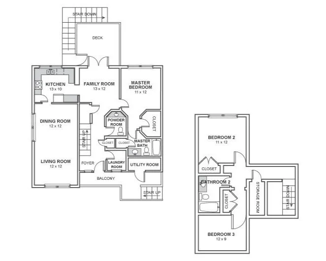
Channelside

3 Beds, 2.5 Baths · 1,578 SF

Rank Bands / Details
JNCO

Neighborhoods
Heritage Cove

APPLY NOW

<< Return to Heritage Cove Floor Plans

<< Return to Floor Plans

JNCO, Heritage Cove, 3BRBrandon HeglandSeptember 21, 2022
Facebook0 Twitter 0 Likes
Previous

Flagler

JNCO, Heritage Cove, 2BRBrandon HeglandSeptember 21, 2022
Next

Bayshore

JNCO, Heritage Cove, 3BRBrandon HeglandSeptember 21, 2022
 

Get in Touch

Harbor Bay at MacDill
8414 Fortress Drive, MacDill AFB, FL 33621
p 813.840.2600
f 813.480.8135
harborbay@tmo.com

Mon-Fri: 7:30 am - 4:30 pm

Contact Us
 
 

All Rights Reserved

Privacy Policy | Terms of Use

ADA and EHO