Harbor Bay at MacDill
Apply
Residents Documents Waitlist faqs Contact
Neighborhoods Floor Plans Home Features Community Amenities Gallery
Social Calendar Event Photos Newsletters Share Your Experience
Beyond The Base Area Schools Living Green
Tenant Bill of Rights Dispute Resolution Process
Live Neighborhoods Floor Plans Home Features Community Amenities Gallery Connect Social Calendar Event Photos Newsletters Share Your Experience Explore Beyond The Base Area Schools Living Green Learn Tenant Bill of Rights Dispute Resolution Process Apply
Harbor Bay at MacDill
Residents Documents Waitlistfaqs Contact

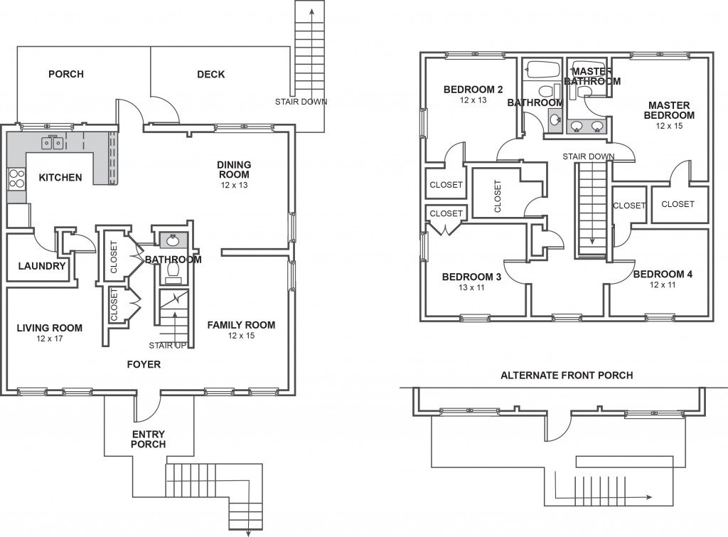
Allamanda

4 Beds, 2.5 Baths · 2,335 SF

Rank Bands / Details
FGO

Neighborhoods
Independence Park

APPLY NOW

<< Return to Independence Park Floor Plans

<< Return to Floor Plans

4BR, Independence Park, FGOBrandon HeglandSeptember 28, 2022
Facebook0 Twitter 0 Likes
Previous

Pentas

Independence Park, FGO, 3BRBrandon HeglandSeptember 28, 2022
Next

Lantana

4BR, ADA, Independence ParkBrandon HeglandSeptember 28, 2022
 

Get in Touch

Harbor Bay at MacDill
8414 Fortress Drive, MacDill AFB, FL 33621
p 813.840.2600
f 813.480.8135
harborbay@tmo.com

Mon-Fri: 7:30 am - 4:30 pm

Contact Us
 
 

All Rights Reserved

Privacy Policy | Terms of Use

ADA and EHO